解説
【4月完成予定・残り1棟】注文住宅のような、こだわりのある家!シンプルなデザインのRC造【伊野波分譲B棟】





















◆民泊不可
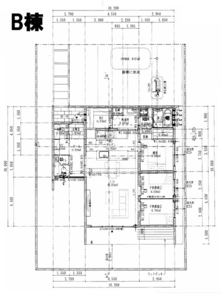
◆Ⅱ型キッチン(シンクとコンロが2列に分離したキッチン)
◆海外製食洗器(BOSCH)導入
◆4帖×2部屋の間は可動間仕切り。繋げて8帖の部屋にすることも可能。
◆排水は浄化槽になります。
◆ZEH水準の省エネ住宅
◆写っている家具は付帯設備ではありません。
◆建築確認番号: 第 沖建技確済 2025-175 号
下のボタンをクリックすると「物件概要書」をダウンロードできます。
データはA3用紙のサイズを基にしています。
お問い合わせお待ちしております。
物件詳細情報
| 所在地 | 本部町伊野波354-18 | 価格 | 4,180万円 |
|---|---|---|---|
| 物件種別 | 売建物 | 仲介手数料 | 1,445,400円 |
| 土地面積 | 234m²(71坪) | 管理費 | - |
| 土地権利 | 所有権 | 管理形態 | - |
| 用途地域 | 未指定 | 固定資産税 | - |
| 地目 | 田 | 管理会社 | - |
| 地勢 | 平坦 | 修繕積立金 | - |
| 環境 | 農地・住宅地 | 建ぺい率 | 60% |
| 都市計画 | 非線引き区域 | 容積率 | 200% |
| 構造 | 鉄筋コンクリート | 接道状況 | 一方道路 |
| 間取り | 3LDK | 接道状況位置指定 | 無 |
| 建物面積 | 87m²(26坪) | 接道 |
接道方向:北東 間口12.50m 幅員5m |
| 築年月 | 2026年2月 | ||
| 駐車場 | 有(3台) ◆車の停め方次第では4台駐車可能 | ||
| 総戸数 | - | 現状 | 建築中 |
| 取引形態 | 仲介 | 引渡 | 相談 |
| 備考 | |||
◆物件掲載内容が現況と異なる場合には、現況を優先するものとします。
